Inicio
 
 
OBRAS REALIZADAS > MADRID

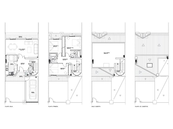
40 Viviendas Unifamiliares en El Encinar, Arroyomolinos

 
obras realizadas
 
madrid
 

  OBRAS REALIZADAS

Ciudad Real
Madrid
Málaga
Toledo
Valladolid

  REHABILITACIÓN

Madrid
Toledo

  OBRAS FUTURAS

Madrid
Málaga
Toledo

  CONCURSOS

Ciudad Real
Cuenca
Madrid
Toledo

  OBRAS NO EJECUTADAS

Madrid
Málaga
Toledo
Valladolid