Inicio
 
 
OBRAS REALIZADAS > MADRID

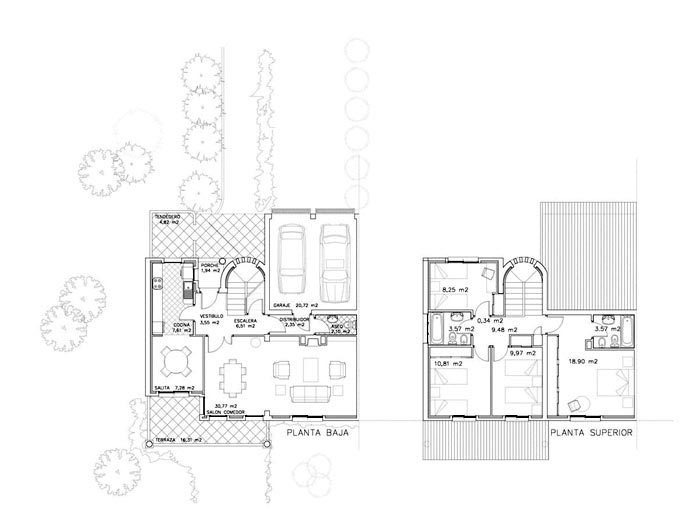
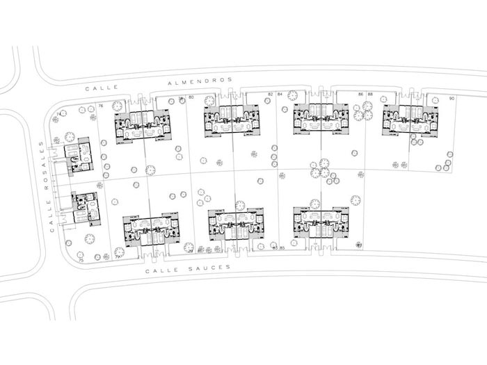
38 Viviendas Unifamiliares en Peñas Albas, Villalba

 
obras realizadas
 
madrid
 

  OBRAS REALIZADAS

Ciudad Real
Madrid
Málaga
Toledo
Valladolid

  REHABILITACIÓN

Madrid
Toledo

  OBRAS FUTURAS

Madrid
Málaga
Toledo

  CONCURSOS

Ciudad Real
Cuenca
Madrid
Toledo

  OBRAS NO EJECUTADAS

Madrid
Málaga
Toledo
Valladolid