Inicio
 
 
REHABILITACIÓN > MADRID

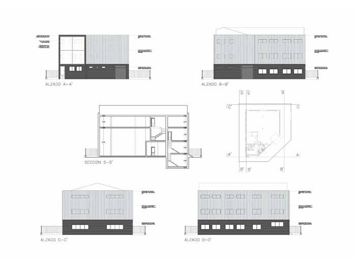
Ampliación y Reforma de Nave Industrial en Leganés

 
REHABILITACIÓN
 
MADRID
 
Reforma de Local para Instalación de Oficina de Farmacia
Ampliación y Reforma de Nave Industrial en Leganés

  OBRAS REALIZADAS

Ciudad Real
Madrid
Málaga
Toledo
Valladolid

  REHABILITACIÓN

Madrid
Toledo

  OBRAS FUTURAS

Madrid
Málaga
Toledo

  CONCURSOS

Ciudad Real
Cuenca
Madrid
Toledo

  OBRAS NO EJECUTADAS

Madrid
Málaga
Toledo
Valladolid