Inicio
 
 
OBRAS FUTURAS > MADRID

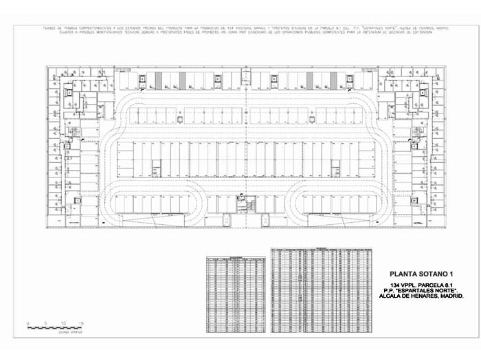
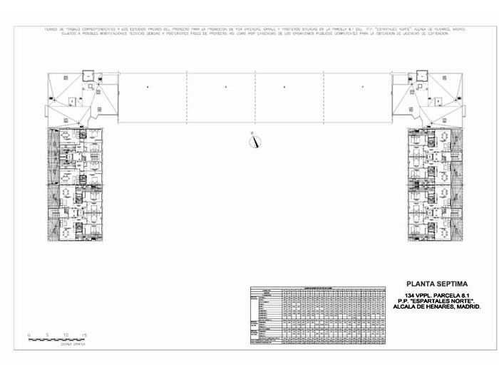
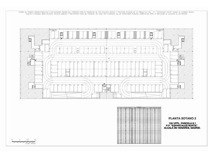
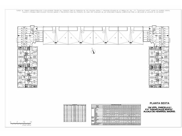
134 Viviendas en Espartales Norte, Alcalá de Henares

 
OBRAS
FUTURAS
 
MADRID
 
152 Viviendas VPP en Buenavista, Getafe
134 Viviendas en Espartales Norte, Alcalá de Henares

  OBRAS REALIZADAS

Ciudad Real
Madrid
Málaga
Toledo
Valladolid

  REHABILITACIÓN

Madrid
Toledo

  OBRAS FUTURAS

Madrid
Málaga
Toledo

  CONCURSOS

Ciudad Real
Cuenca
Madrid
Toledo

  OBRAS NO EJECUTADAS

Madrid
Málaga
Toledo
Valladolid